Overview

f you’ve been searching for a property that truly lives the farm lifestyle, this one delivers. This custom-built 3BR/2BA home with bonus room sits on 38 rolling acres of gorgeous countryside with long-range mountain views, quality improvements, and room to breathe. Built in 2016, the home offers 2,030 sq ft and is paired with the outdoor features buyers dream about: a recently Amish-built 3-stall barn with tack room, power, and water, RAMM fencing for durable, low-maintenance pasture management, hay storage, and a graded area ready for an arena. For recreation and country living, enjoy the in-ground pool with new liner, a large shop for equipment or hobbies, and a flowing creek along the back of the property with an off-grid building ideal for camping or unplugged weekends. Surrounded by peaceful rural farms, this property feels worlds away while remaining just 30 minutes to Tryon, near South Mountain State Park trail riding, and a short drive to Forest City and Shelby. Horse farm, mini farm, recreational retreat—this one wears a lot of hats and wears them well.

Property Type Single family
MLS # 4368119
Year Built 2016
Garage Attached
pattern image
DJI_20260407105423_0463_D
DJI_20260407110052_0505_D
pattern white image

Features

check mark icon Inground pool
check mark icon Horse barn
check mark icon Workshop
check mark icon hay storage
check mark icon graded spot for arena
check mark icon off grid "cabin"
check mark icon stone fireplace
check mark icon Screened porch
check mark icon trex decking
check mark icon vaulted ceiling
check mark icon wood beams
check mark icon RAMM Fencing
pattern white image
pattern white image

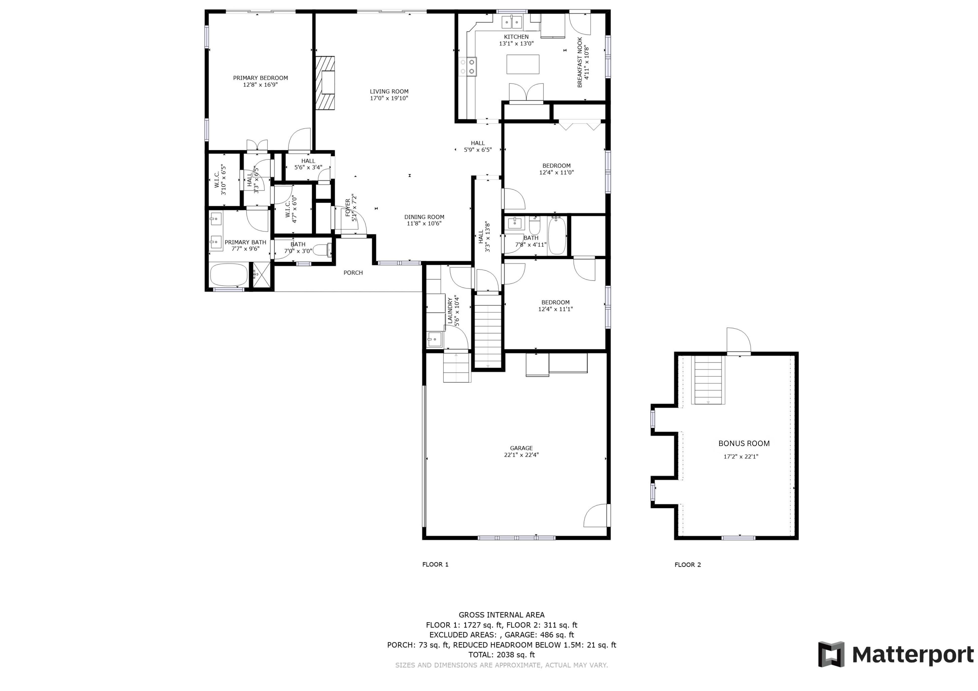
Floor Plans

pattern white image

Presented by

/
user headshot
Monica Faulkner
NC/SC Realtor EXP REALTY : LAND & RANCH (803) 230-4727
pattern white image

Get in touch

Thank you!

Your message is sent.

We will be in touch with you soon.

pattern image

Location

pattern image